Anhang
- Anwendungsbericht LED-Fallrohrbeleuchtung (1,28 MB)
- Ausklinkung Sicke Standrohr (3,81 MB)
- Flachdach-Wasserfangkasten Sonderanfertigung (809,38 KB)
- Konstruktionszeichnung Flachdach-Wasserfangkasten (136,04 KB)
- Logistikzentrum RÖSLE bei Nacht (127,96 MB)
- Logistikzentrum RÖSLE bei Tag (139,37 MB)
- Montage LED Lichtlinien (2,72 MB)
- Montage LED-Einheiten (4,29 MB)
- Montage präzise Ausrichtung (3,9 MB)
- Montage Rohrschellenhalter mit Hebebühne (2,84 MB)
- Montage Rohrschellenhalter (3,48 MB)
- Montage Sichtblenden (4,28 MB)
- Montage Spengler (3,24 MB)
- Zeichnung Ansicht Rohrbau (554,1 KB)
Wie GRÖMO mit hinterleuchteten Fallrohren neue Maßstäbe setzt
Wenn Technik auf Design trifft
Reportage aus Marktoberdorf – ein Projekt, das Handwerk und Innovation vereint
Was passiert, wenn ein Traditionsunternehmen mit über 135 Jahren Erfahrung seine Leidenschaft für Funktion und Form in ein neues Produkt gießt? Im Falle von GRÖMO entstand daraus ein System, das Dächer nicht nur zuverlässig entwässert, sondern Gebäude auch zum Strahlen bringt – im wahrsten Sinne des Wortes. Die neue LED-Fallrohrbeleuchtung aus dem Allgäu setzt nicht nur architektonische Akzente, sondern eröffnet Architekten, Bauherren, Spenglern und Dachdeckern auch völlig neue gestalterische Freiheiten an der Fassade.
Wie praxistauglich die Technik ist, zeigt ein Projekt am Stammsitz der RÖSLE GmbH in Marktoberdorf - dort kommt das neue GRÖMO LED-Beleuchtungskonzept zum Einsatz. Sobald es dämmert, tritt das Fallrohr selbst als Lichtquelle in Erscheinung. In Kombination mit den anthrazitfarbenen Regenfallrohren aus der GRÖMO ALUSTAR-Serie entstand eine hochwertige, moderne Fassadenwirkung – ideal für zeitgemäße Wohn- oder Industriebauten.
Großprojekt: viele Fallrohre, eine klare Vision
Auf über 3.000 Quadratmetern entstand bei der Firma Rösle ein vielseitig nutzbarer Neubau: ein modernes Logistikzentrum mit einem direkt angeschlossenen Outlet-Store von 800 Quadratmetern sowie einer großzügigen Kochschule mit weiteren 400 Quadratmetern Fläche. Ein Ensemble, das Funktionalität mit Erlebnis verbindet und den Charakter der Marke RÖSLE architektonisch erlebbar macht.
Beim Bau des neuen Komplexes entschied man sich bei der Dachentwässerung bewusst für die außenliegenden Attikaentwässerung. Die Planung und Realisierung des neuen LED-Beleuchtungssystems wurde gewerkübergreifend umgesetzt: In enger Abstimmung arbeiteten die Firma Gebler, verantwortlich für Spengler- und Dachdeckerarbeiten, und die Firma Minck, die die moderne Beleuchtungstechnik installierte und intelligent in die Gebäudesteuerung integrierte, Hand in Hand.
Entwässerungskonzept: Herausforderung und Lösung
Vor dem ersten Spatenstich auf der Baustelle des Neubaus stand die Planung im Fokus. Auf Grundlage der geltenden Normen und Regelwerke für die Bemessung der Dachentwässerung wurde das Entwässerungskonzept entwickelt.
Eine Herausforderung, die über die bloße Positionierung von Fallrohren hinausging. Anhand der Berechnungen wurde ermittelt, welche Dimensionen die Gullys und Rohrleitungen für die Entwässerung des Flachdaches aufweisen mussten, um eine zuverlässige Ableitung des Regenwassers sicherzustellen. Ein besonderes Augenmerk lag dabei auch auf der optischen Wirkung der außenliegenden Regenfallrohre. Diese sollten sich harmonisch in das Gesamtbild der fertiggestellten Gebäudehülle einfügen – ohne dabei die funktionalen Anforderungen zu vernachlässigen.
Im Detail: Gully und Wasserfangkasten
Das weitläufige Flachdach des RÖSLE-Komplexes erstreckt sich über eine Fläche von mehr als 2.000 Quadratmetern. Um diese Dimension effizient zu entwässern, ohne das architektonische Erscheinungsbild durch eine Vielzahl sichtbarer Ablaufrohre zu stören, fiel die Wahl für die Haupt-Entwässerung auf den Attika-Jumbo-Gully der Firma Grumbach. Mit seinem ovalen Rohrprofil bewältigt er bis zu 12 Liter Wasser pro Sekunde, bei einer Anstauhöhe von 55 Millimetern – ideal für die Anforderungen des RÖSLE-Daches.
Ergänzt wurde das System durch eigens für dieses Projekt konzipierte Wasserfangkästen, die große Wassermengen zuverlässig aufnehmen und ohne Rückstau in die Entwässerungsleitungen führen. Im Mittelpunkt der Entwicklung stand die Optimierung der Ablaufleistung. Dafür wurde für den Wasserfangkasten ein trichterförmiges Innenleben konstruiert, das die einströmende Wassermenge aus dem Zulaufrohr effizient aufnimmt und direkt in ein Ablaufrohr mit einem Durchmesser von 120 Millimeter leitet. Der Trichter ist von außen nicht sichtbar: Eine elegant geformte „Hülle“ verleiht dem Wasserfangkasten seine klare, architektonische Anmutung – reduziert auf das Wesentliche. Ein besonderes Detail ist die abgesenkte Vorderkante, die als Notüberlauf fungiert – im Fall einer Verstopfung des Regenfallrohres verhindert sie einen Rückstau auf das Flachdach und leitet überschüssiges Wasser sicher auf schadlos überflutbare Flächen. Die Tiefe des Wasserfangkastens wurde bewusst doppelt so groß wie die erforderliche Druckhöhe am Einlauf bemessen. Dadurch steht auch bei extremen Niederschlagsereignissen ein ausreichender Puffer zur Verfügung, so dass das Regenwasser kontrolliert in den angeschlossenen Fallrohrstrang abfließen kann. Die Position des Auslaufstutzens wurde in Abhängigkeit von der LED-Hinterleuchtung der Fallrohre festgelegt. Um eine homogene, durchgängige und ästhetisch ansprechende Lichtverteilung zu gewährleisten, sollte der Abstand zwischen Fallrohr und Fassade zwischen 55 und 70 mm liegen. Beim Neubau der Firma RÖSLE wurde dieser Abstand auf 70 mm festgelegt – sowohl für den Auslaufstutzen des Wasserfangkastens als auch für das nachfolgende Fallrohr.
Diese präzise Ausrichtung ermöglicht eine gleichmäßige Hinterleuchtung durch das integrierte LED-System und erzeugt einen harmonischen Lichtkegel, der die Architektur wirkungsvoll betont. Die technische Lösung bleibt dabei dezent im Hintergrund – sichtbar ist allein das Ergebnis: ein klar definiertes, stimmiges Lichtspiel an der Fassade.
Und auch in puncto Alltagstauglichkeit wurde nichts dem Zufall überlassen: Die Wasserfangkästen sind so konstruiert, dass sie sich bei Bedarf leicht öffnen, warten und reinigen lassen. So verbinden sich funktionale Anforderungen, gestalterischer Anspruch und langfristige Wartungsfreundlichkeit zu einer Lösung, die nicht nur bei Starkregen überzeugt, sondern auch im täglichen Betrieb durchdacht und dauerhaft zuverlässig ist.
Für eine durchgängig hochwertige Optik und beständige Funktionalität kamen am gesamten Neubau einheitlich GRÖMO ALUSTAR Regenfallrohre in der Nenngröße 120 mm zum Einsatz. Die Rohre wurden mit der strukturierten TX-Beschichtung in RAL 7016 (Anthrazit) ausgeführt – eine Oberfläche, die nicht nur witterungsbeständig ist, sondern sich auch harmonisch in die Fassadengestaltung einfügt.
Starkregen im Fokus: neue Anforderungen an die Dachentwässerung
Neben der optischen Einheitlichkeit und der gesteigerten Funktionalität bietet ein großer Rohrdurchmesser in Kombination mit der leistungsstarken Wasseraufnahme klare Vorteile hinsichtlich der zunehmenden Starkregenereignisse. Die steigenden Anforderungen an moderne Entwässerungssysteme lassen sich eindrucksvoll an aktuellen Klimadaten ablesen. Ein Blick in den KOSTRA-Atlas 2020, der am 1. Januar 2023 in Kraft trat und vom Deutschen Wetterdienst herausgegeben wird, zeigt im Mittel eine deutliche Erhöhung der Niederschlagswerte bei sehr kurzen Dauerstufen (5 Minuten). Diese Entwicklung wurde bereits frühzeitig in die Planung einbezogen und verdeutlicht, wie entscheidend es ist, entwässerungstechnische Lösungen vorausschauend, funktionssicher und zugleich gestalterisch hochwertig zu realisieren.
Trotzt auch dem Winter: zuverlässig bei Eis und Schnee
Ein weiterer, entscheidender Aspekt in der Planung war die Gefahr von Frostschäden in den Entwässerungsleitungen – von der Dachfläche abfließendes Schmelzwasser kann in kälteren Rohrabschnitten wieder gefrieren. Um dieses Risiko zuverlässig auszuschließen, wurde eine elektrische Begleitheizung installiert. Sie verläuft durch alle kritischen Bereiche – vom Flachdachgully über den Wasserfangkasten und die Fallrohre bis in die Grundleitung auf Frosttiefe und sorgt dafür, dass selbst bei strengem Winterwetter kein Wasser in den Rohren gefriert. So bleibt die Entwässerung dauerhaft funktionstüchtig und geschützt vor witterungsbedingten Schäden.
Exakte Vorbereitungen für eine reibungslose Montage
Bei einem Bauvorhaben dieser Größenordnung und Komplexität ist eine gute Vorbereitung absolut entscheidend. Besonders die vorgehängte Fassadenkonstruktion mit ihrer eleganten Verkleidung aus Aluverbundplatten in RAL 7016 (Anthrazit, TX-beschichtet) stellte die Planer und Ausführenden vor besondere Herausforderungen. Nach der Montage der äußeren Hülle wären Anpassungen nämlich nahezu ausgeschlossen gewesen. Spätere Eingriffe hätten nicht nur das Erscheinungsbild beeinträchtigt, sondern auch strukturelle Konsequenzen nach sich gezogen, was mit erheblichem Aufwand verbunden gewesen wäre.
Umso wichtiger war es, sämtliche Ausschnitte, Durchführungen und Befestigungspunkte bereits im Vorfeld exakt zu definieren. Dazu gehörten unter anderem die Öffnungen für die Attikaabläufe sowie der Notentwässerung, die Halterungen der Rohrschellen, die Befestigungspunkte der Wasserfangkästen sowie die Durchführungen für die Anschlusskabel der LED-Fallrohrbeleuchtung.
Montagestart vor Ort: Präzision auf 16 Metern Höhe
Nach intensiver Planungsarbeit und präziser Vorbereitung war es endlich so weit: Die ersten Bauteile wurden auf der Baustelle angeliefert und das Montageteam konnte mit der Installation der Flachdach-Wasserfangkästen beginnen.
Ein zentrales Element der Montage war der Attika-Jumbo-Gully, an den die Wasserfangkästen angeschlossen wurden. Die ovalen Ausschnitte für das Zulaufrohr mussten dabei exakt ausgeführt werden. Im Anschluss wurden die vorbereiteten Wasserfangkästen mithilfe einer Hubarbeitsbühne in etwa 16 Metern Höhe über der Geländeoberkante montiert, wo schließlich der Anschluss an den Attika Gully erfolgte. Ein besonders wichtiger Arbeitsschritt war die Abdichtung des Übergangs zwischen Zulaufrohr und Wasserfangkasten. Dank der flexiblen GRÖMO TPE-Dichtung konnte dieser Übergang schnell, sicher und dauerhaft hergestellt werden – ein Beispiel dafür, wie durchdachte Produktdetails den Arbeitsprozess vor Ort erleichtern und beschleunigen.
Bei der Befestigung der Kästen an der Fassade standen Sicherheit und Dauerhaftigkeit im Vordergrund. Da die Bauteile nicht nur ihr Eigengewicht, sondern auch potenzielle Wassermengen sowie Winterbelastungen wie Eis und Schnee zuverlässig tragen müssen, kamen die geforderten Befestigungsmittel für schwere Lasten zum Einsatz.
Im nächsten Schritt konnten die LED-Fallrohrschellen mit ihrer U-förmigen Erweiterung für die LED-Fallrohrbeleuchtung in die vorbereiteten Wandhalter eingeschraubt werden. Die Wandhalter wurden bereits vor der Montage der Fassade fest im Mauerwerk verankert. Die Rohrschellen gewährleisten nicht nur die exakte Positionierung der Fallrohre, sondern bilden zugleich die Grundlage für eine gleichmäßige Ausleuchtung der Fassade im Bereich der Fallleitungen.
Lichtakzente mit technischer Raffinesse – die LED-Fallrohrbeleuchtung nimmt Gestalt an
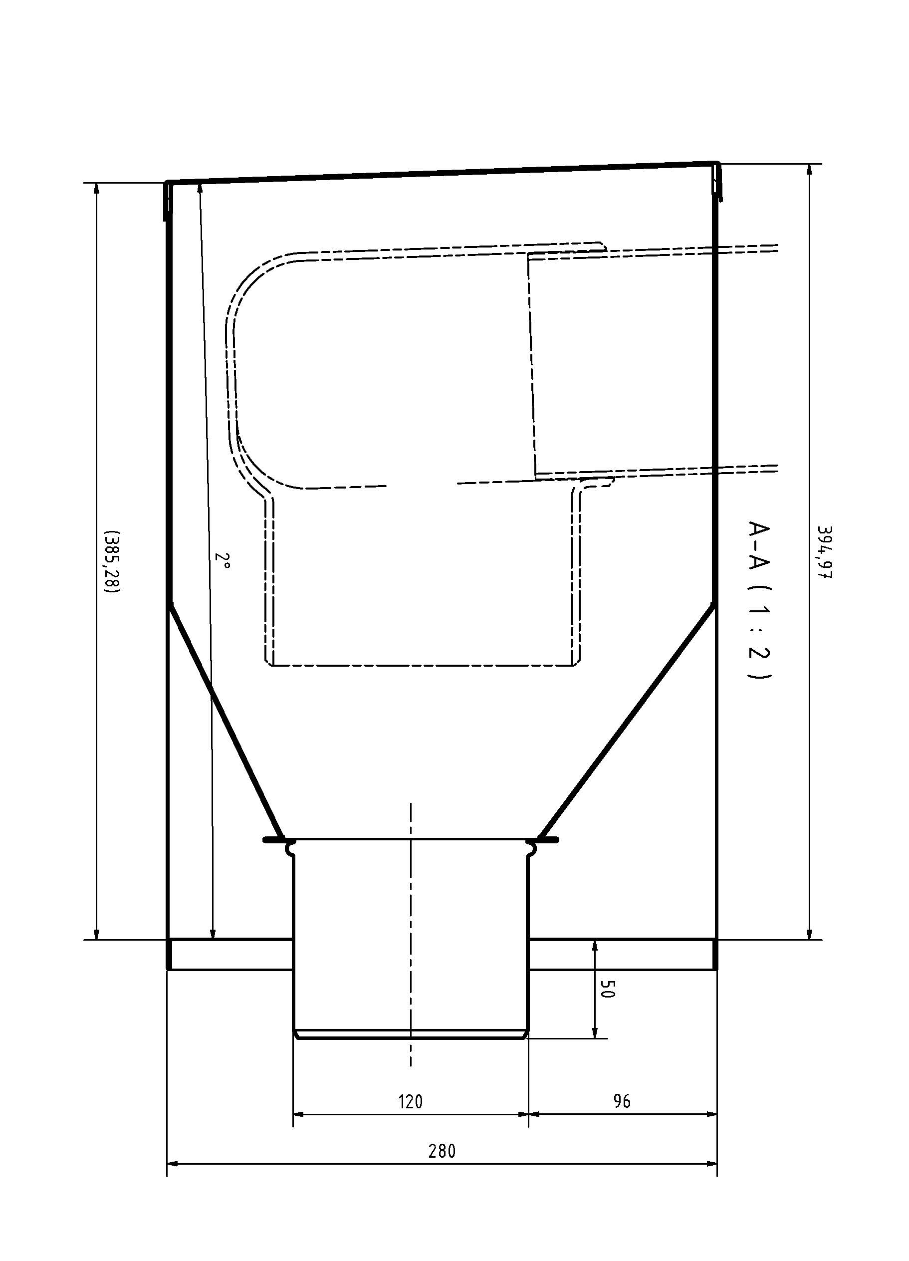
Die Installation der LED-Fallrohrbeleuchtung erforderte Sorgfalt und handwerkliche Präzision. Der Zuschnitt der Sichtblenden wurde exakt auf das Maß der Schiebemuffe abgestimmt, welche zur Verbindung zweier Blendenteile dient. Ziel war es, eine optisch durchgehende, fugenlose Sichtblende zu realisieren, die sich harmonisch in das Fassadenbild einfügt. Die Sichtblenden übernehmen dabei gleich mehrere Funktionen: Sie dienen als Träger der LED-Module, als Designelement zur Betonung der klaren Fassadengeometrie und als schützende Hülle für die dahinterliegende Technik.
Kernstück der Beleuchtungslösung ist die VarioLED™ IP67 Lichtlinie, eingebettet in robuste Aluminiumprofile. Mit einer kaltweißen Farbtemperatur von 6700 K sorgt sie für eine gleichmäßige Ausleuchtung – ideal zur Hervorhebung architektonischer Details. Die LED-Module haben eine werkseitige Länge von 2894 mm und fügen sich passgenau in die 2900 mm langen Sichtblenden ein. Letztere werden bereits montagefertig mit vernieteten Montagewinkeln für die Lichtlinien geliefert.
Die Befestigung der LED-Elemente erfolgte über eine verdeckte Klickverbindung, die Stabilität gewährleistet und die Technik hinter der Blende verbirgt. Die montierte LED-Lichtlinie ist für ein 3000 mm langes Fallrohr ausgelegt und bildet in Kombination mit der Sichtblende eine funktionale wie gestalterische Einheit.
Montage der LED-Einheiten – Schritt für Schritt zum Lichtsystem
Der Abstand zwischen zwei Rohrschellen wurde auf 1470 mm begrenzt. Dadurch ist sichergestellt, dass sich unter jeder Fallrohrmuffe eine Schelle befindet, welche das Fallrohr zuverlässig gegen ein Abrutschen sichert. Die mittlere Schelle des Fallrohres gewährleistet sowohl die strukturelle Stabilität als auch den exakten, geraden Verlauf der LED-Lichtlinie.
Anschließend wurde die erste Sichtblende inklusive Lichtband in die Nut der beiden obersten Rohrschellen eingeschoben und seitlich mit der Madenschraube fixiert. Daraufhin folgte die nächste Sichtblende –ausgerichtet auf die Oberkante des darunterliegenden Fallrohres. Zwischen den beiden Lichtsegmenten wurde ein etwa 35 mm breiter Freiraum für die elektrische Steckverbindung der LED-Elemente vorgesehen.
Den Abschluss des Montageschrittes bildete die Schiebemuffe: Sie überbrückt die verbleibende Lücke zwischen den Sichtblenden technisch zuverlässig und ermöglicht gleichzeitig einen optisch durchgängigen, homogenen Lichtverlauf. Auf diese Weise wurde Segment für Segment sauber und systematisch montiert.
Da die LED-Lichtlinie grundsätzlich von oben nach unten montiert wird, muss die Länge des untersten Segments stets an die örtlichen Gegebenheiten angepasst werden. Dies kann entweder durch die Kombination kürzerer Standardmodule oder durch die Verwendung eines Moduls in Sonderlänge erfolgen. Bei diesem Projekt fiel die Entscheidung auf die Standardlänge, da deren Länge beinahe exakt dem Abstand zwischen dem unteren Ende des letzten Fallrohrsegments und der Oberkante des Sockels entsprach.
Auch beim Übergang zur Grundleitung waren clevere Detaillösungen gefragt. Eine Ausklinkung an der wandseitigen Sicke des Standrohres ermöglichte eine präzise Positionierung der Sichtblende. Der unterste Leuchtpunkt endete bewusst etwa 150 mm über dem Boden am Sockel – ein eleganter Abschluss, der auch den technischen Anforderungen entsprach und den dauerhaften Kontakt mit Wasser zuverlässig ausschloss.
Technik mit Tiefgang
Auch hinter der Fassade wurde mitgedacht. Ein zentrales technisches Kriterium war die maximale Länge des LED-Bands von 11,5 Metern nicht zu überschreiten, um Spannungsverluste zu vermeiden und eine gleichmäßige Hinterleuchtung des Regenfallrohres sicherzustellen. Bei zwei Fallrohrsträngen mit einer Gesamthöhe von je 16 Metern wurde die Stromzuführung daher auf 10 m Höhe aus der Fassade geführt. Von dort aus verlief das eine Segment 10 m nach unten, das andere 6 m nach oben – beide innerhalb der zulässigen Grenze. Beim dritten Fallrohrstrang mit 11 m Gesamtlänge wurde die Einspeisung bauseits bedingt bei 8 m Höhe vorgenommen. Das 3 m lange obere Segment konnte direkt angeschlossen werden; das untere Segment mit rund 8 m Länge erhielt eine separate Stromzuführung.
Ein weiteres Highlight des Projekts: Die verwendeten Netzteile der LED-Fallrohrbeleuchtung sind DALI-fähig – das bedeutet, sie unterstützen das „Digital Addressable Lighting Interface“, ein internationaler Standard zur digitalen Steuerung von Beleuchtungsanlagen. Dadurch lässt sich die LED-Fallrohrbeleuchtung nahtlos in die zentrale Haussteuerung integrieren. Das bringt gleich mehrere Vorteile mit sich: Die Lichtintensität lässt sich individuell und bedarfsgerecht regeln, Zeitsteuerungen und Lichtszenarien können komfortabel programmiert werden, und auch der Energieverbrauch lässt sich effizient steuern und überwachen. So verbindet sich anspruchsvolle Architektur mit intelligenter Technik zu einem stimmigen Gesamtkonzept.
Fazit: leuchtende Perspektiven
Mit der LED-Fallrohrbeleuchtung von GRÖMO zeigt sich eindrucksvoll, wie Handwerkskunst und moderne Technik zu einer harmonischen Einheit verschmelzen können. Die intelligente Verbindung aus Entwässerung, Lichttechnik und Design eröffnet neue gestalterische Möglichkeiten – nicht nur für Architekten und Bauherren, sondern auch für Spengler und Dachdecker, die zukunftsorientiert planen und arbeiten.
Denn zeitgemäße Gebäudeplanung denkt weiter: Sie berücksichtigt nicht nur Funktionalität, sondern auch die visuelle Inszenierung des Objekts. Die LED-Fallrohrbeleuchtung wird so zum gestalterischen Element mit echtem Mehrwert.
Auch technisch überzeugt das System durch seine Offenheit: Die nahtlose Integration in moderne Smart-Home-Steuerungen ermöglicht die individuelle Anpassung von Lichtzeiten, Dimmverläufen oder Bewegungsmelderfunktionen – alles bequem und effizient steuerbar.
Ein Bauteil, das lange Zeit als rein funktional galt, rückt nun ins Rampenlicht: Das Regenfallrohr wird zum architektonischen Statement – eine smarte Lösung für anspruchsvolle Projekte und ein starkes Zeichen für Innovation im Spenglerhandwerk.
Kurz & knapp:
Technische Highlights der GRÖMO LED-Fallrohrbeleuchtung
- LED-Band: HYDRA PRO SW, 24V Konstant-Spannung, 4W/m, 6.700 K
- Schutzklasse: IP67 (vollvergossen, UV- & wetterbeständig)
- Befestigung: U-förmige Sichtblende mit angepassten Fallrohrschellen
- Farboptionen: GRÖMO ALUSTAR Anthrazit TX oder Zink
- Steuerung: Smart-Home-Integration möglich